局部放電檢測試驗回路接線方法圖及試驗要求
局部放電測試系統試驗回路的一般要求,敘述了幾種用于測量局部放電參量的基本試驗回路,并介紹了這些回路和系統的工作原理。
有關技術委員會還可以推薦用于特殊試品的特殊試驗回路。只要可能,建議有關技術委員會用視在電荷作為被測參量,但對特殊情況也可以使用別的參量。
如果有關技術委員會未作規定,則4.2所述的任何試驗回路以及第5章中所規定的任何測量系統均可使用。
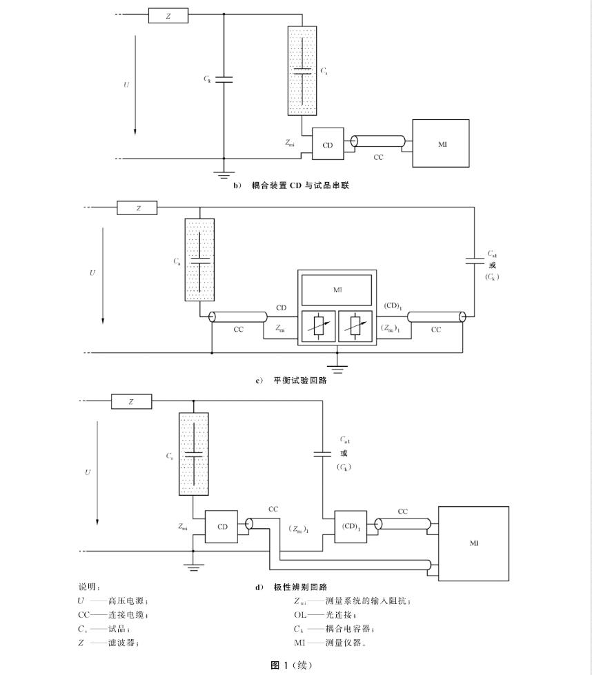
試驗回路,用于局部放電測量的大多數回路可以由圖1a)~圖1d)所示的基本回路演變而來。圖2和圖3表示這些回路的一些變化,每個回路的組成主要有:
a) 試品,通常被認為是一個電容器Ca(參見附錄D)。
b)耦合電容器Ck(應設計為低電感電容),或第二個試品Cn1(類似于試品Ca)。在規定的試驗電壓下Ck或Ca1均應具有足夠低的局部放電水平,以便對規定的局部放電值進行測量。如果一個測量系統能夠區分并分別測量來自試品和耦合電容器中的局部放電,那么允許Ck或Ca1具有較高的局部放電水平。
c)帶輸人阻抗的測量系統(對平衡回路,還需要第二個輸入阻抗)。
d)背景噪聲足夠低的高壓電源(見第6章和第7章),以便在規定試驗電壓下對規定的局部放電值進行測量。
e)背景噪聲足夠低的高壓連接(見第6章和第7章),以便在規定試驗電壓下對規定的局部放電值進行測量。
f)有時在高壓端接人一個阻抗或濾波器,以減小來自供電電源的背景噪聲。
注:對于圖1~圖3所示的局部放電基本試驗回路,其測量系統的耦合裝置也可放在高壓端,即耦合裝置與Ca或Ck交換位置;這時可用光纜來連接耦合裝置和測量儀器,如圖1a)所示。
不同試驗回路的其他情況及特性可參見附錄C和附錄H。













